Будинок у Центрі р-н Дніпровської Рів'єри (№ 22-345-494)
Ціна: 125 000 $

Характеристики
| Ціна: | 125 000 $ |
|---|---|
| № об'єкта: | 22-345-494 |
| Тип: | будинок |
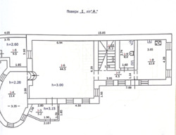
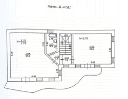
| Поверхів: | 2 |
| Спалень: | 3 |
| Площа будинку: | 211 м2 |
| Ділянка: | 10 сот |
| Додатково: | гараж |
Адреса: Полтавська, Кременчукський, Кременчуг, Центр, Богдана Хмельницкого
* Локація — найкраща! Центр міста. За 1,5 км від площі «Перемоги».
* Будинок 2003р/п., 2 поверхи, 210кв.м., 3 спальні (з кожної є вихід на балкон), величезна вітальня 45кв.м., 2 с/в, простора кухня. Не підвал — винний погріб))
* Якісні характеристики: капітальна забудова: фундамент — з/б блоки, з/б перекриття, внутрішні утеплення стін. Покрівля даху — металочерепиця, гідро та паробарʼєр.
* Комунікації: газ, водопостачання централізоване та свердловина, септик, електроенергія 3 фази.
* Територія: 10 соток приватизована (під забудову). Дві зони відпочинку. Зрілі зелені насадження. Гараж-майстерня з автоматичними воротами 100кв.м..
* Комфорт: територія закрита, вулиця тупікова, відсутній трафік. 100 метрів до маркету «Оптовичок». 100 метрів до зупинки транспорту. 500 метрів і ви у парку.
Залишились питання? Телефонуй.


























